CSWADI EasyBIM

建筑案例:某产业园项目

发表时间:2025-06-18 09:53


项目概况

本项目主要包含生产厂房和研发配套楼。 其中研发配套楼主要包含研发办公、 厨房、 食堂及生活配套用房等功能,项目用地8.5万平米,总建筑面积19万平米,研发配套塔楼采用钢筋混凝土框架结构, 抗震等级为二级。项目停车设施以地下停车为 主, 通过坡道相连,结合地面景观, 地面设置非机动车停车位、 装卸车位及部分地面停车位。在坚持“时尚自然” 的原则下, 用现代的设计手法进行演绎, 构建高雅、 休闲、 舒适的工业区景观典范。

EasyBIM应用亮点

  • 识图成模效率高,准确率高,把图纸快速转换为EasyBIM模型作为项目基础模型,优于其他翻模软件,在初设深度更换设计软件,过渡比较平滑。软件常用构件非常全面,构件类型化、参数化,轻松构建项目模型。

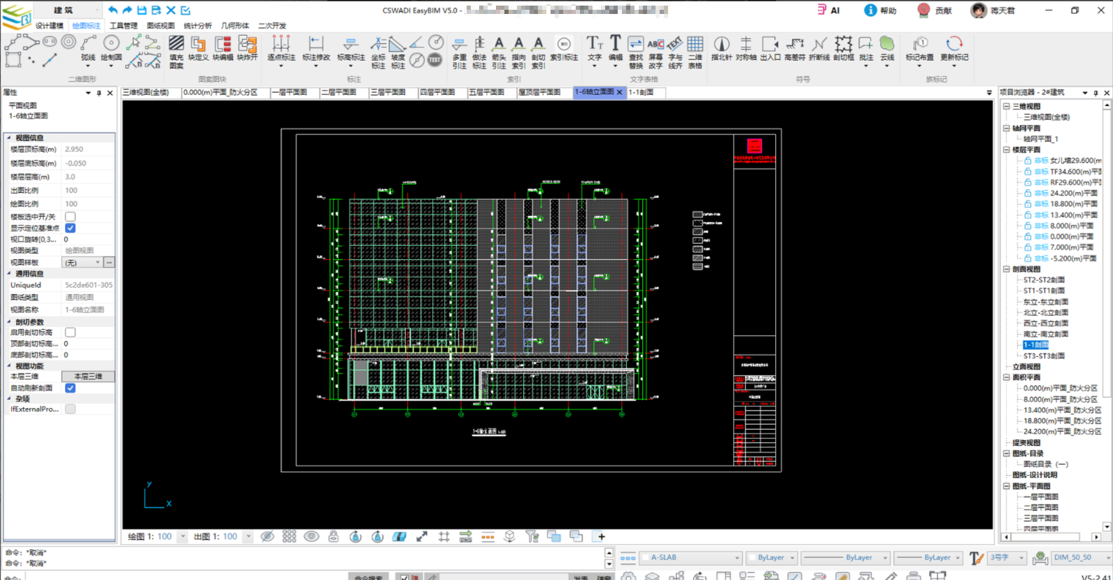
  • 全自动剖切与标注,指定剖切位置后,自动生成符合规范要求的立剖面图,混凝土 / 玻璃等材料图例智能填充,轴网标高、门窗尺寸等 30 + 参数一键标注,自动处理墙体与楼板、梁柱的遮挡关系,门窗开启方向、消防救援窗等细节精准表达;模型修改后图纸实时同步更新,出图效率大幅提升。

  • 在任意平面视图框选楼梯构件,一键生成全楼楼梯平面大样图,自动标注踏步尺寸、栏杆高度等关键参数,支持二次编辑与快捷排图;选择剖切位置后,自动生成含标准层折叠的楼梯剖面大样图,楼层标高、梯段连接关系清晰呈现,复杂楼梯节点表达效率与准确性显著提升。




分享到: