CSWADI EasyBIM

暖通案例:某工业园区

发表时间:2025-06-20 14:18


项目简介:

本项目用地性质为一类工业用地,拟建设飞机加改装研发相关的工业用房及配套用房,其中工业用房主要包含维修车间、改装生产车间、生产制造车间及研发厂房。项目总建筑面积为6.7万平方米,其中地上建筑面积约为6.3万平方米,地下室建筑面积约为0.4万平方米。项目一期主要包含一栋地上建筑面积1.4万平方米,地下室建筑面积0.14万平方米的维修车间。项目位于成都市东部新区,属于亚热带季风气候,气候特征为夏热冬冷。
项目暖通模型:

EasyBIM应用亮点:

1、丰富的智能连接功能。

EB软件提供了高效的管道连接解决方案。如“快速连管”功能:软件能够识别风管的空间位置关系,智能判断合适的连接形式,如弯头、三通等,简化了频繁切换连接件的步骤。又如“设备连管”功能:EB可以分析管道与设备的空间关系,对风管进行延伸或裁剪,并依据预设规则选用连接件。同时,可将管道和设备归类到相应的暖通系统图层,自动实现图层管理。

2、排烟系统联动设计。

防烟分区承载着诸多排烟设计相关参数,且相关参数之间相互影响,是暖通排烟设计的基础。在EB中将防烟分区作为排烟设计的信息交互中心,挡烟垂壁高度,排烟量计算等排烟设计过程所需相关信息直接从防烟分区进行提取,若相关信息发生了修改则重新赋值回防烟分区。整个设计流程均在一套数据流中完成,避免了传统设计过程中某一处参数修改,而其余关联参数未联动调整而导致错误发生。

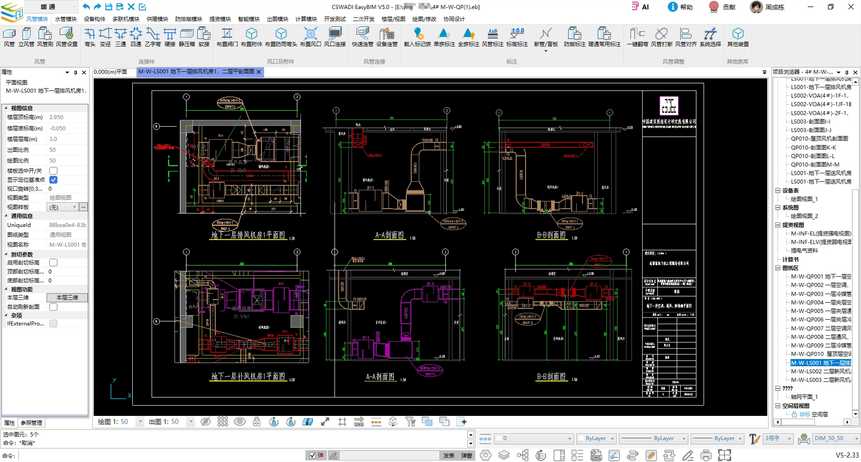
3、机房剖面自动生成。

通过生成剖面功能,即可自动生成符合规范的机房大样剖面图,减少80%以上重复性绘图工作,大幅提升设计效率。只需在BIM模型中绘制剖切线,点击“一键生成”按钮,系统自动匹配土建结构、暖通管道、设备布局等数据,30秒内输出标准剖面图,无需手动调整比例、标注或图层。全自动化的数据关联与规范校验,消除因手动绘制导致的尺寸误差、符号错误等问题,提升图纸交付质量。


分享到: